• 首页
  • 产品与解决方案
  • 服务支持
  • 行业应用
  • 科仕控制

Controlsmart智全文丘里阀

CVA定风量文丘里阀

SVA变风量文丘里阀

UVA通用型文丘里阀

VVA通风柜文丘里阀

CVA定风量文丘里阀

CVA是出色的定风量风管末端空气调节阀门代表,由文丘里阀阀体与调节支架组成。阀杆根据要求风量被锁定在固定位置来控制风量的输出。CVA在出厂前经过严格的标定来进行精确的风量控制,保证需求风量在±5%范围。在必须的情况下,也可以透过现场旋钮手动调节风量,保证一定的操作弹性。

询价
产品参数 技术参数

基本性能

- 机械性压力无关性, 小于1秒自适应调节来应对管道静压变化

- 采用316L不锈钢制作

- 符合A级法体泄漏等级标准

- 无最小直段管限制,不受风管布局影响

- 提供多种链接借口,适用于各种风管



风量范围

单联

双联阀

三联阀

DN200/8”

60-1200 CMH

120-2400 CMH

/

DN250/10”

85-1700 CMH

170-3400 CMH

/

DN300/12”

150-2500 CMH

300-5000 CMH

450-7500 CMH

DN350/14”

340-4250 CMH

680-8500 CMH

1020-17250 CMH





图片16.jpg图片17.jpg图片18.jpg




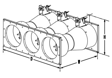
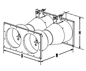
尺寸

双联


三联


四联

Dimension

D

W

H


D

W

H


D

W

H


DN200/8”

478

598

337


/

/

/


/

/

/


DN250/10”

579

561

387


/

/

/


/

/

/


DN300/12”

693

683

441


1022

683

441


1351

683

441


DN350/14”

816

755

506


1204

755

506


1592

755

506



SVA变风量文丘里阀

SVA智能型变风量文丘里阀不仅是一款高精度风量控制设备,更可作为整体房间控制的核心中枢,提供简洁高效、易于管理的控制解决方案。 作为一个功能完善的控制平台,SVA既能够独立实现复杂通风系统的风量调节,也可作为房间控制器的主站,联合多个从站型变风量文丘里阀,对区域风量、压力及其他环境参数进行集中控制。
SVA智能型变风量文丘里阀可无缝接入Smartzone智能区域控制系统,实现房间风量的平衡控制,亦可通过标准通讯协议灵活集成至第三方楼宇管理系统(BMS),从而满足多场景、多层级的控制需求。

询价
产品参数 技术参数

基本性能

- 机械性压力无关性, 小于1秒自适应调节来应对管道静压变化

- 采用316L不锈钢制作

- 在工作范围内,风量控制精度小于 +-­5%

- 1秒内响应风量变化控制信号, 快速调整至制定风量

- 出场时提供多达50点风量标定

- 符合A级法体泄漏等级标准

- 调节比可达20:1

- 无最小直段管限制,不受风管布局影响

- 提供多种链接借口,适用于各种风管



量范围


单联

双联阀

三联阀

DN200/8”

60-1200 CMH

120-2400 CMH

/

DN250/10”

85-1700 CMH

170-3400 CMH

/

DN300/12”

150-2500 CMH

300-5000 CMH

450-7500 CMH

DN350/14”

340-4250 CMH

680-8500 CMH

1020-17250 CMH




图片20.jpg图片21.jpg图片22.jpg



尺寸

双联


三联


四联

Dimension

D

W

H


D

W

H


D

W

H


DN200/8”

478

598

362


/

/

/


/

/

/


DN250/10”

579

561

412


/

/

/


/

/

/


DN300/12”

693

683

466


1022

683

466


1351

683

466


DN350/14”

816

755

531


1204

755

531


1592

755

531



UVA通用型文丘里阀

根据设定风量需求,在接收控制器发出的控制指令信号后,UVA可迅速调节至对应风量并进行输出。作为空调通风系统末端的风量控制装置,UVA适用于所有需对风量进行精确调控的场合,如实验室的送风与排风、洁净室的送风、回风及排风等。在此类应用环境中,对风量稳定性的响应速度要求极高,而响应时间小于1秒的高速电动执行器,完全能够满足这些需求。

询价
产品参数 技术参数

基本性能

- 机械性压力无关性, 小于1秒自适应调节来应对管道静压变化

- 采用316L不锈钢制作

- 在工作范围内,风量控制精度小于 +-­5%

- 1秒内响应风量变化控制信号, 快速调整至制定风量

- 出场时提供多达50点风量标定

- 符合A级法体泄漏等级标准

- 调节比可达20:1

- 无最小直段管限制,不受风管布局影响

- 提供多种链接借口,适用于各种风管



风量范围


单联

双联阀

三联阀

DN200/8”

60-1200 CMH

120-2400 CMH

/

DN250/10”

85-1700 CMH

170-3400 CMH

/

DN300/12”

150-2500 CMH

300-5000 CMH

450-7500 CMH

DN350/14”

340-4250 CMH

680-8500 CMH

1020-17250 CMH



图片12.jpg图片13.jpg图片14.jpg


尺寸

双联


三联


四联

Dimension

D

W

H


D

W

H


D

W

H


DN200/8”

478

598

362


/

/

/


/

/

/


DN250/10”

579

561

412


/

/

/


/

/

/


DN300/12”

693

683

466


1022

683

466


1351

683

466


DN350/14”

816

755

531


1204

755

531


1592

755

531



VVA通风柜文丘里阀

VVA提供两种控制模式。 在被动控制模式下,当接收到外部控制器发出的命令信号后,阀体能够迅速调节至对应的风量。控制信号形式可为 0–10VDC 模拟信号、无源干接点信号,或通过通讯端口下达的指令。在主动控制模式下,VVA可直接接入各类变送器,并按照预设程序对风量进行自主调节。
作为高性能的压力无关型风量控制装置,VVA具备出色的主动调节能力,尤其适用于实验室通风柜以及其他需要与传感器联动的应用场景。 在通风柜排风系统中,VVA还可选配操作显示屏,实现更丰富的应用功能与便捷的操作体验。

询价
产品参数 技术参数

基本性能

- 机械性压力无关性, 小于1秒自适应调节来应对管道静压变化

- 采用316L不锈钢制作

- 在工作范围内,风量控制精度小于 +-­5%

- 1秒内响应风量变化控制信号, 快速调整至制定风量

- 出场时提供多达50点风量标定

- 符合A级法体泄漏等级标准

- 调节比可达20:1

- 无最小直段管限制,不受风管布局影响

- 提供多种链接借口,适用于各种风管


风量范围


单联

双联阀

三联阀

DN200/8”

60-1200 CMH

120-2400 CMH

/

DN250/10”

85-1700 CMH

170-3400 CMH

/

DN300/12”

150-2500 CMH

300-5000 CMH

450-7500 CMH

DN350/14”

340-4250 CMH

680-8500 CMH

1020-17250 CMH




图片20.jpg图片21.jpg图片22.jpg



尺寸

双联


三联


四联

Dimension

D

W

H


D

W

H


D

W

H


DN200/8”

478

598

362


/

/

/


/

/

/


DN250/10”

579

561

412


/

/

/


/

/

/


DN300/12”

693

683

466


1022

683

466


1351

683

466


DN350/14”

816

755

531


1204

755

531


1592

755

531



成功案例

PROJECTS

  • 贝达药业
  • 睿智医药
  • 中海炼化惠州炼油